Používame cookies

Súbory cookie a ďalšie technológie sledovania používame na zlepšenie vášho zážitku z prehliadania našich webových stránok, na to, aby sme vám zobrazovali prispôsobený obsah a cielené reklamy, na analýzu návštevnosti našich webových stránok a na pochopenie toho, odkiaľ naši návštevníci prichádzajú. Viac info

 

Investičná príležitosť – Skelet na Benkovej ulici v Nitre s právoplatnými povoleniami, začnite stavať hneď!

Ulica: Benkova
Mestská časť: Klokočina
Obec: Nitra
Okres: Nitra
Kraj: Nitriansky kraj
Druh: Pozemky
Typ: Predaj
Typ pozemku: Stavebný pozemok
Cena v RK

Popis nehnuteľnosti

Na predaj – Developerský projekt nadstavby a zmeny účelu využitia na bytový dom

 

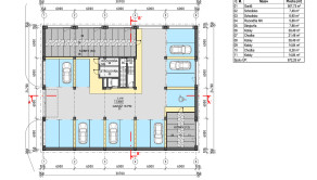
Ponúkame na predaj  skelet budovy s celkovou výmerou 750 m² (3 poschodia), ktorý sa nachádza na Benkovej ulici, Nitra na začiatku sídliska Klokočina. Objekt je situovaný v atraktívnej lokalite, obklopený bytovými domami, školou a administratívnymi budovami. K projektu sú k dispozícii všetky potrebné povolenia na prestavbu a rozšírenie objektu na bytový dom.

 

Základné parametre projektu

 

• Celková plocha pozemku: 3415 m²

• Zastavaná plocha: 797,56 m²

• Celková podlažná plocha (nadzemné podlažia): 3459,90 m²

• Počet podlaží: 1 podzemné + 4 nadzemné + 1 ustúpené

• Výška atiky: +17,400 m

• Typ strechy: plochá strecha

 

Navrhované funkcie

 

• Bytové jednotky:

• 1-izbové byty: 1 jednotka (40 m²)

• 2-izbové byty: 23 jednotiek (50–60 m²)

• 3-izbové byty: 18 jednotiek (90 m²)

• Celkom: 42 bytov (pôdorys v galerií) 

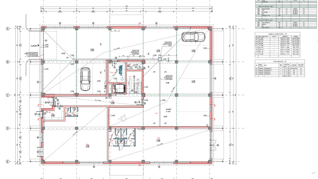
• Parkovanie:

• Podzemná garáž: 16 parkovacích miest alebo 11 parkovacích miest + nebytový priestor (kaviareň) 

• Vonkajšie parkovacie plochy: 45 parkovacích miest

• Celkový počet parkovacích miest: 61

 

Finančné údaje

 

• Odhadovaná cena bytov bez parkingu: 7,2 mil. EUR

• Odhadované náklady na dokončenie stavby: 2,8 mil. EUR

 

Dokumentácia a povolenia v cene

 

Súčasťou predaja je kompletná projektová dokumentácia vrátane:

• Inžinierske a architektonické riešenie

• Statika, zdravotechnika, elektroinštalácie

• Vykurovanie, chladenie a odvetrávanie

• Požiarna ochrana a rozpočty

• Právoplatné stavebné povolenie stavby

• Stavebné povolenie na vodné stavby

• Rozhodnutie o úprave vjazdu

 

Lokalita

 

Projekt sa nachádza na Benkovej ulici v Nitre, v tichom a rozvinutom prostredí s dobrou občianskou vybavenosťou.

 

Tento projekt predstavuje výnimočnú investičnú príležitosť pre developerov so záujmom o výstavbu moderného bytového domu. Pre viac informácií a podmienky predaja nás neváhajte kontaktovať.

Vlastnosti

Status:
aktívne
Vlastníctvo:
osobné
Celková plocha:
3459.9 m2

Pozrieť na mape

Maklér

Štefan Podhorský

Štefan Podhorský

maklér

  • Slovensky
  • English
  • narks
  • lrm

Radi Vám poradíme

Podobné nehnuteľnosti